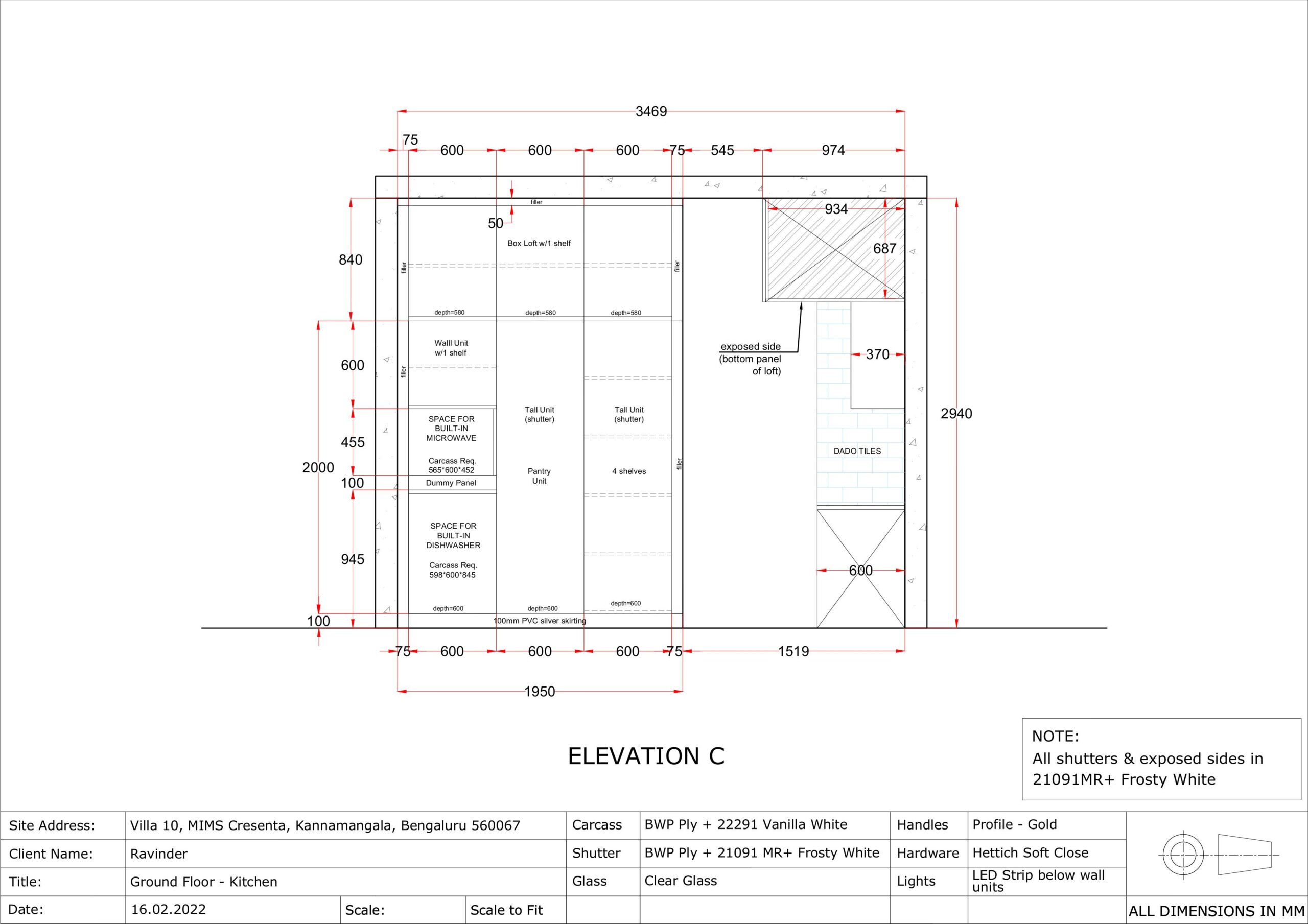
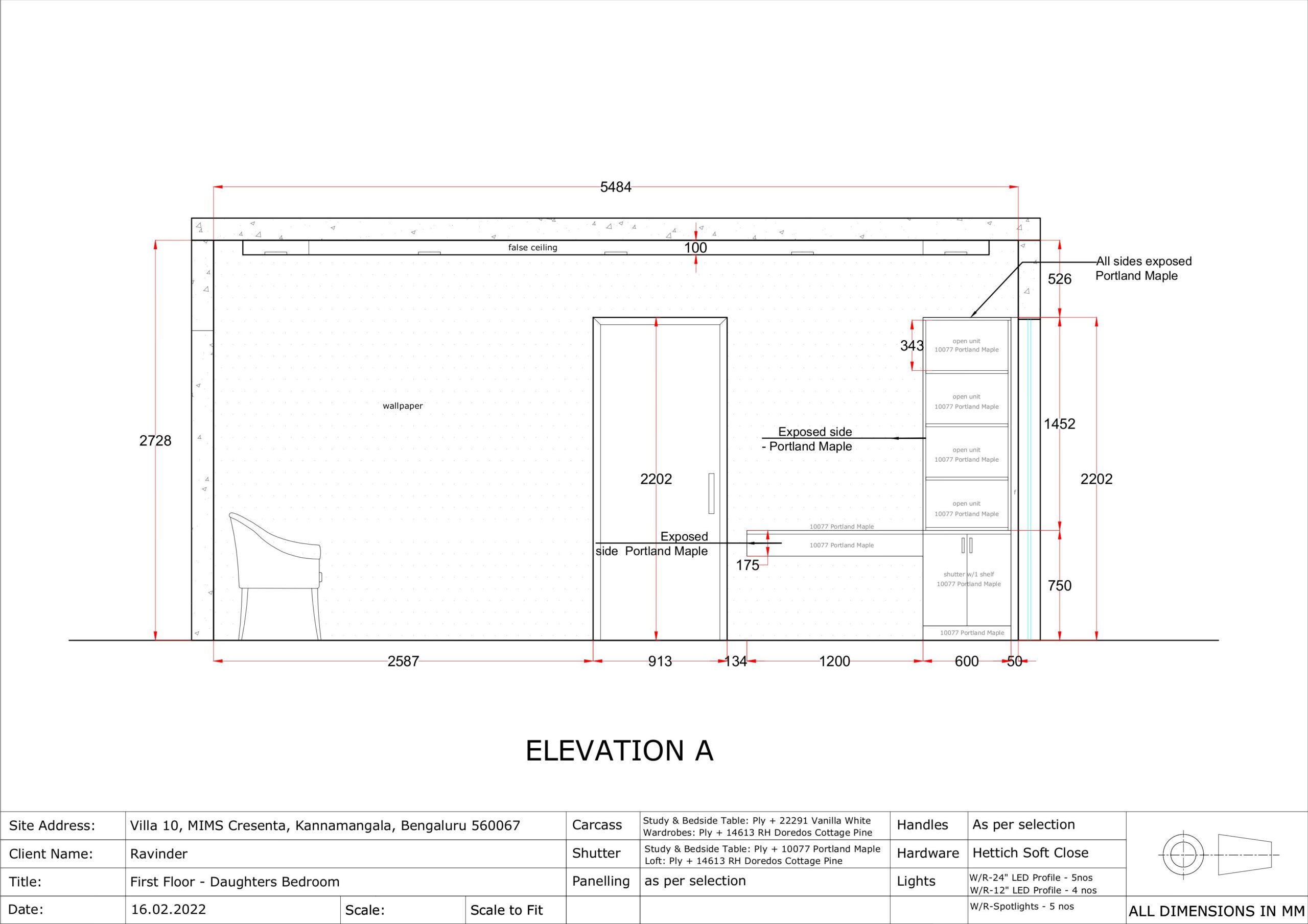
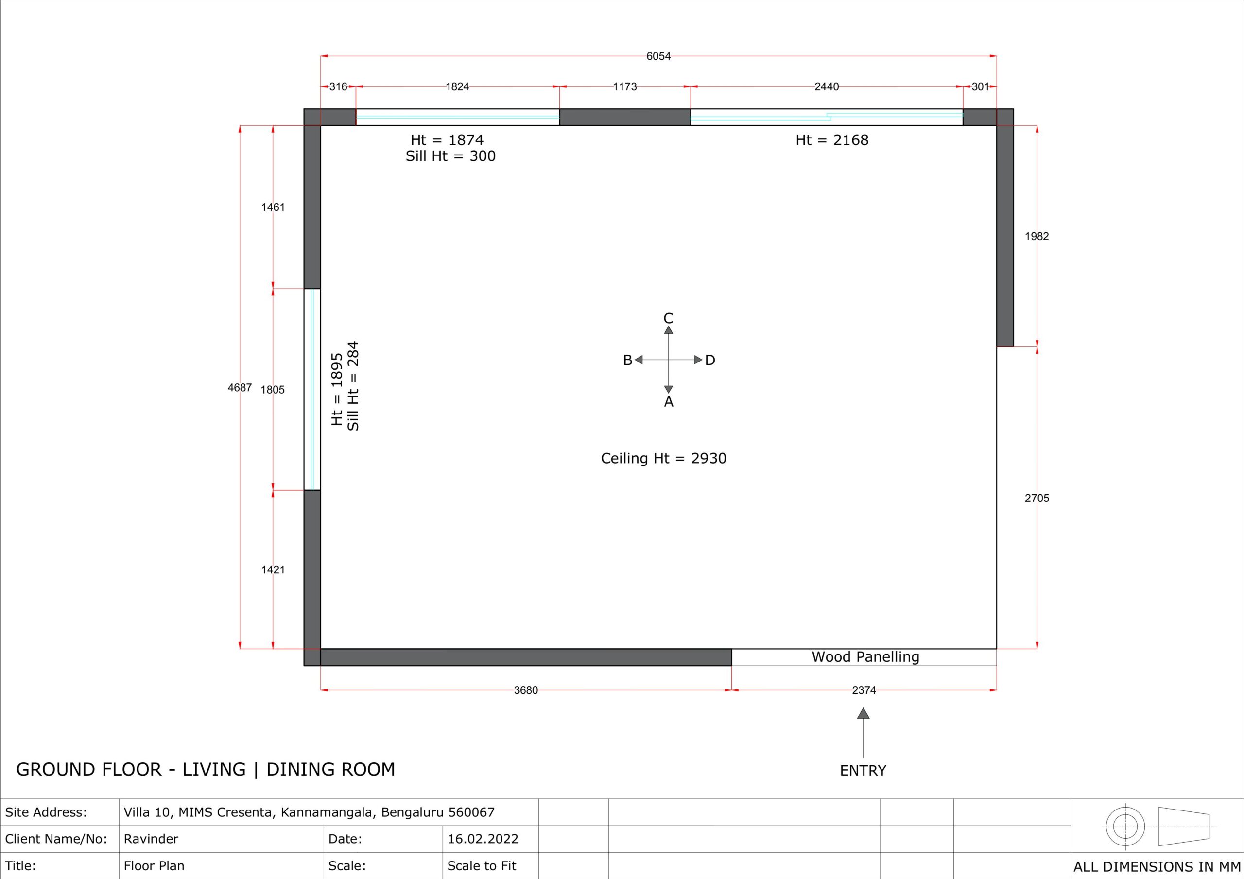
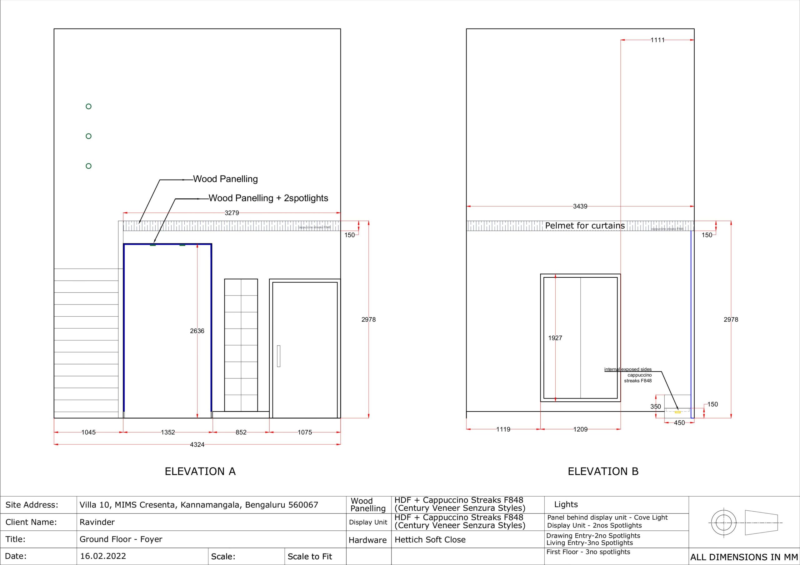
Woodwork technical drawing set

Please scroll down to see complete set ->

Get in Touch

What type of project(s) are you interested in ?
Where can I reach you ?
What would you like to discuss